Мы НЕ экономим на изделиях, что помогают Вам расти и развиваться.


Мешкоопрокидыватель

Фото

Видео


Описание

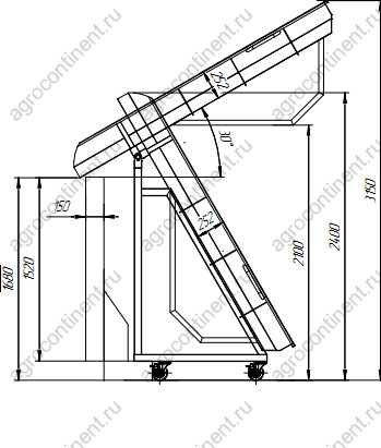
Торгово-производственная компания ООО Агроконтинент, предлагает заказать в производство и купить, цена будет хорошая, опрокидыватель мешков с солью и сахаром, а если понадобится, то и с разными заморскими специями. Такая задача стоит у всех пищевых производств, те кто использует сыпучие материала, сначала поднять на высоту, а после этого высыпать всё содержимое мешка. Мы специализируемся на производстве мешкоопрокидывателей для всего диапазона высот выгрузки и под любой вес, под любую нагрузку. Конечно, самый ходовой вес, это мешок 50 кг, но если у Вас тара с другим весом, не переживайте, пишите нам запрос и мы изготовим оборудование по Вашему ТЗ. Форма приёмного лотка, может меняться, в зависимости от потребностей, мы делаем и закругления, и угловатые решения для фиксирования тары. Если есть потребность в изготовлении разворота, это когда лист металла ложиться на поверхность пола и по нему мы подтягиваем мешок, такое тоже можем сделать, уже были ранее выполнены заказы.

Простое и быстрое поднятие мешков, с нашим оборудованием, делается без применения мускульной силы, и в этом можно убедиться если посмотреть видео, обращайтесь, пожалуйста. Сначала рассматривается высота выгрузки, чтобы инженер рассчитал плечо подъёма и необходимую силу, а потом уже лоток и все вспомогательные детали. Механизм может быть комбинированный, это когда применяется Сталь 3 и пищевая нержавеющая сталь. Так как мы работаем только с пищевыми производствами, мы всегда рекомендуем не экономить на подъёмнике мешков, так как служить он будет долго, годами работать будет. Пусть стоимость немного выше простого, при использовании Aisi 304, но его можно мыть любыми реагентами, проводить дезинфекцию в помещении, и никаких последствий Вы не увидите, это оборудование на долгие годы.

Если требуется качественный мешкоопрокидыватель, да ещё и с установкой магнитного сепаратора, тогда Вам точно к нам, это наше поле ответственности. Для сыпучих материалов, магнитная решётка берётся, не менее 900 мили тесл МТЛ, или 0,9 тесла. Такой чувствительности достаточно, чтобы задержать металлические включения и предотвратить попадание металла в продукт. Наше вспомогательное оборудование, помогает не только облегчить труд человека, но и обеспечить безопасность попадания разных включений в продукты питания. Поднятие мешков с солью или сахаром, будет быстрой работой, и сотрудник даже не будет уставать от нагрузок, всю нагрузку, берёт на себя наше оборудование. Сам привод используем электрический, с мотором-редуктором, что обеспечит бесперебойность в работе и выдерживание поднятия большого веса. Мотор-редуктор рассчитывается в зависимости от поднимаемого веса и высоты опрокидывания, это делает инженер-конструктор в специальной программе. Главное, что бы на Вашем предприятии было подключение 3 фазы, т.е. 380 Вольт, но если такой возможности нет, просим Вас сообщить.

Контакты

Как с нами связаться

Адрес

ООО "АГРОКОНТИНЕНТ"

117036 Россия, г. Москва, ул. Профсоюзная, д.3.


Адрес производства: Московская область, Щёлковский район, деревня Богослово, ул. Промышленный проезд, с.100

Рабочие часы

пн.-пт.: 08:00 - 19:00
сб., вс.: Выходные

Задать нам вопрос

* - Обязательные поля

Нажимая на кнопку отправить вы соглашаетесь с политикой обработки персональных данных.

Внимание! Информация о товарах, размещенная на сайте, не является публичной офертой, определяемой положениями Части 2 Статьи 437 Гражданского кодекса Российской Федерации. Производители вправе вносить изменения в технические характеристики, внешний вид и комплектацию товаров без предварительного уведомления. Уточняйте характеристики у наших менеджеров перед оформлением заказа.